The fund to rebuild Welsh Pony has reached the £100,000. Thanks to all those who have donated so far.
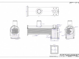
Work has progressed on the design of the new boiler, which will follow the dimensions of the old boiler, but will be of welded construction. As well as being drawn up at Boston Lodge, the boiler will be built in the works.







